





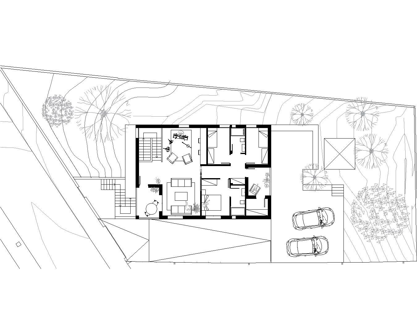
Casa unifamiliar Obra nueva
Este proyecto de casa unifamiliar de obra nueva, hemos integrando la construcción en la topografía existente. Esta distribuida en dos plantas, conectadas por una escalera iluminada por una ventana que rasga la fachada principal. La casa se adapta a cada etapa de la vida familiar.